
1801 32 ST #203 Vernon, BC V1T5K4
1 Bed
1 Bath
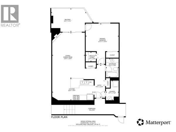
717 SqFt
UPDATED:
Key Details
Property Type Single Family Home
Sub Type Condo
Listing Status Active
Purchase Type For Sale
Square Footage 717 sqft
Price per Sqft $355
Subdivision City Of Vernon
MLS® Listing ID 10362902
Bedrooms 1
Condo Fees $324/mo
Year Built 1981
Property Sub-Type Condo
Source Association of Interior REALTORS®
Property Description
Location
Province BC
Rooms
Kitchen 1.0
Extra Room 1 Main level 14'11'' x 9'1'' Other
Extra Room 2 Main level 7'10'' x 5'7'' Laundry room
Extra Room 3 Main level 5'8'' x 4'11'' 4pc Bathroom
Extra Room 4 Main level 12'11'' x 14'5'' Primary Bedroom
Extra Room 5 Main level 12'8'' x 18'4'' Living room
Extra Room 6 Main level 6' x 12' Dining room
Interior
Heating Baseboard heaters
Cooling Wall unit
Flooring Carpeted, Laminate
Fireplaces Number 1
Fireplaces Type Insert
Exterior
Parking Features No
Community Features Pets Allowed, Rentals Allowed
View Y/N Yes
View City view, Mountain view
Total Parking Spaces 1
Private Pool No
Building
Story 1
Sewer Municipal sewage system
Others
Ownership Strata
Virtual Tour https://my.matterport.com/show/?m=gRhVEaqeWcW
GET MORE INFORMATION

Personal Real Estate Corporation | License ID: 188967
#1100 - 1631 Dickson Avenue Kelowna, British Columbia V1Y0B5






