REQUEST A TOUR If you would like to see this home without being there in person, select the "Virtual Tour" option and your advisor will contact you to discuss available opportunities.
In-PersonVirtual Tour

$ 6,398,000
Est. payment /mo
Active
1837 Shuswap Avenue Lumby, BC V0E2G0
19,500 SqFt
UPDATED:
Key Details
Property Type Commercial
Sub Type Freehold
Listing Status Active
Purchase Type For Sale
Square Footage 19,500 sqft
Price per Sqft $328
Subdivision Lumby Valley
MLS® Listing ID 10325344
Year Built 2019
Lot Size 32.900 Acres
Acres 32.9
Property Sub-Type Freehold
Source Association of Interior REALTORS®
Property Description
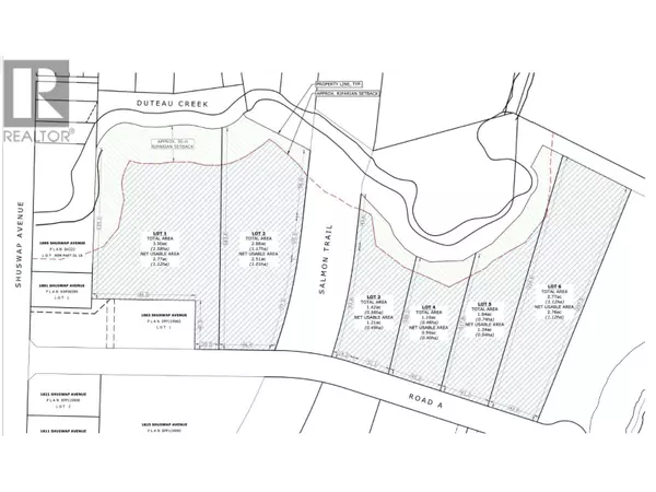
This 32.91-acre industrial property in Lumby features a state-of-the-art 19,500 sq. ft. facility, zoned I2 Light Industrial. Equipped with municipal water, sewer, and 3-phase 600v power, the main floor is fully finished, while the second floor has internal steel framing. Constructed to food and pharmaceutical-grade specs, the building adheres to GMP standards for European export. The property is part of the upcoming Monashee Light Industrial Park. A subdivision application has been approved by the Village of Lumby, with full underground services to be installed and road construction commencing in October. Six lots are proposed: •Lot 1: 3.90 acres (1.58 ha), net usable 2.72 acres (1.12 ha) •Lot 2: 2.88 acres (1.17 ha), net usable 2.51 acres (1.01 ha) •Lot 3: 1.42 acres (0.58 ha), net usable 1.21 acres (0.49 ha) •Lot 4: 1.19 acres (0.48 ha), net usable 0.99 acres (0.40 ha) •Lot 5: 1.84 acres (0.74 ha), net usable 1.34 acres (0.54 ha) •Lot 6: 2.77 acres (1.12 ha), net usable 2.72 acres (1.12 ha) These lots will soon have completed legal descriptions and, once PIDs are assigned, will be listed separately. See supplements for the full subdivision concept plan. (id:24570)
Location
Province BC
Rooms
Kitchen 0.0
Interior
Heating Forced air, See remarks
Exterior
Parking Features No
View Y/N No
Roof Type Unknown
Private Pool No
Building
Lot Description Level
Sewer Municipal sewage system
Others
Ownership Freehold
GET MORE INFORMATION

Nathan French
Personal Real Estate Corporation | License ID: 188967
#1100 - 1631 Dickson Avenue Kelowna, British Columbia V1Y0B5






